Apartment Renovation 1st Phase

The apartment is in The Osborne, at 57th street and 7th Avenue, a New York City Landmark, built in 1885 and designed by James E. Ware, one of the city’s first apartment buildings along with The Dakota and the Gramercy.

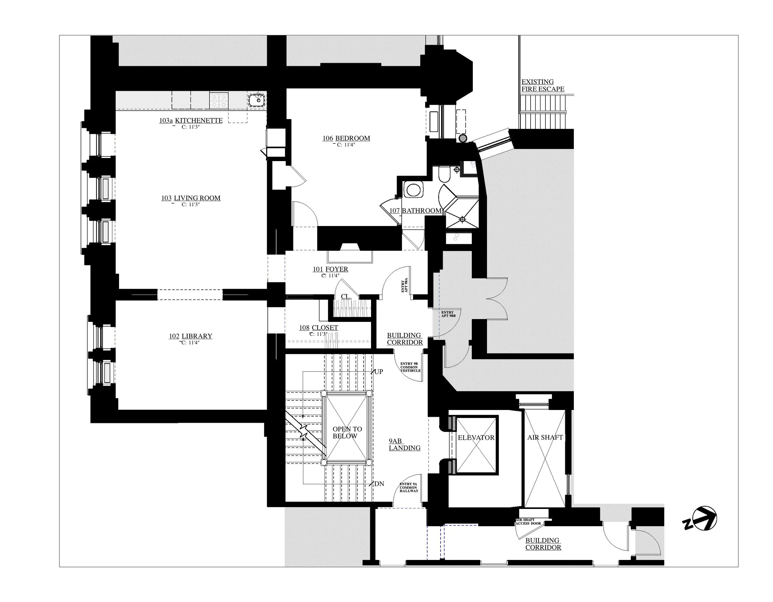
This 2,500 square feet apartment was split into two units in 1922. Our clients owned the front unit, facing 57th street. The first phase of our renovation involved the design of a new kitchen and new bathroom and the restoration of historic finishes. After it was completed the owners bought the adjoining unit and wanted to reconstitute the original apartment. During the second phase, we joined both units, restored historic finishes and designed a new bathroom.

The front unit consisted of a small entry carved out of the original apartment’s hall, a living room and study en-suite, a bedroom and a small bathroom. When the original apartment was divided this unit found itself without a kitchen and an unsightly small kitchen was shoehorned in a corner of the living room. We decided to remove this kitchen to play up the generous proportions of the living room and study: we housed the “kitchen” in a long credenza at the end of the space. The detailing of the light colored cabinetwork is deliberately minimal and while it provides a strong visual focus at the end of the space its design does not compete with the historic restored woodwork. The credenza includes a sink, gas cook-top, drawer dishwasher and under-counter refrigerator and freezer and kitchen storage. A cabinet built into the wall (into a previous door opening) provides additional storage and gas ovens. We enlarged the existing bathroom and designed it in a deliberately modern idiom, as this is a non-original bathroom in a non-historic location.

The front unit was reconnected with the adjacent apartment as part of the second phase of the renovation. We were able to restore the configuration of the original entry hall and restore its historic woodwork. The walls are treated with a special swirl finish applied in situ with a comb. We designed a new bathroom, to be used as a guest bathroom and powder room. The opulent finishes are meant to acknowledge the color palette of the building’s lobby.

PROJECT TEAM
Françoise Bollack, A.I.A, DESA, Principal in charge
Anthony Grisafi, Assoc. A.I.A., Junior Designer
Charles Huang, RA. LEED A.P.
MEP Engineer: Abraham Joselow, PE, PC
Decorative Painting Contractor:Evergreene Painting Studios
Dave Greene, Project Manager
Photographer: Completed restoration: Henrik Olund

Previous
Previous

New Lobby Design

Next
Next

Apartment Renovation