Father's Heart Ministries

Françoise Bollack Architects is designing a master plan for the historic Father’s Heart Ministries’ complex at 543-545 East 11th street in New York’s East Village. The church was designed in 1867 by William Field and Son who is well know for his role in the design of reform housing in New York City.

The goals of the Master Plan are to:
1. Secure the future of the buildings and their long-term sustainability.
2. Open up the buildings to the street and to the public park to better weave its spaces with the neighborhood’s public spaces

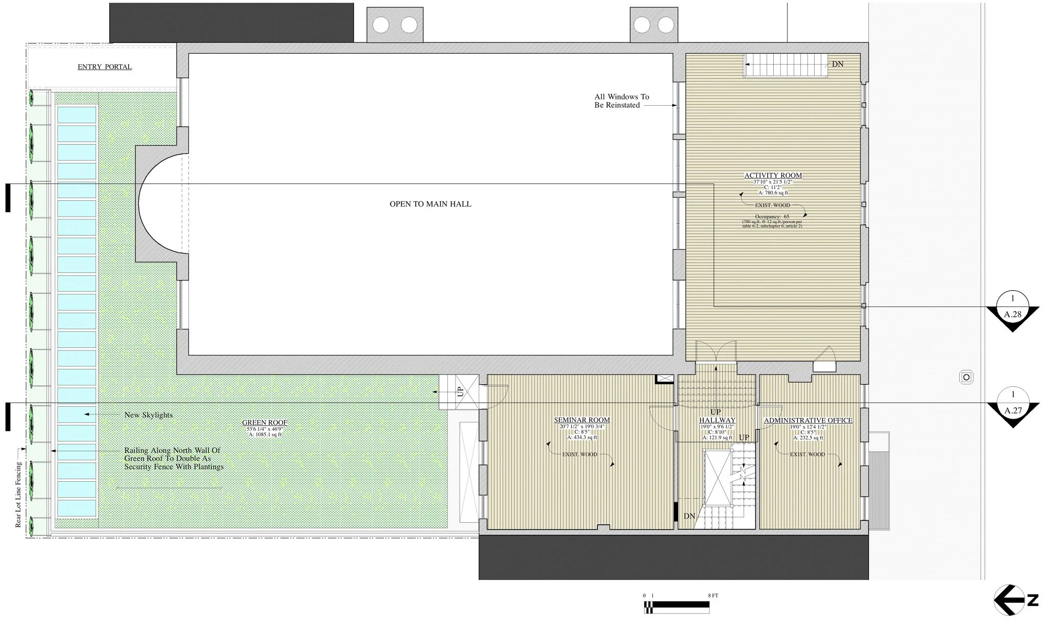
The Plan
The design creates a handicap accessible “porch” on the street and rebuilds the church’s rear extension to include a new monumental entry portal (providing also a code compliant egress). These alterations will greatly improve access and use of the sanctuary. We will build a new extension on the north of the parsonage and of the church: this will double the size of the kitchen and pantry and will add support spaces to the sanctuary. Sustainable features will include green finishes, a green roof on the new building, to be used for teaching, and photovoltaic cells on the roof of the parsonage.

The Process
Françoise Bollack Architects developed the plan in a four-step process:
1. ASSESSMENT: document and assess the existing conditions, including history, design, construction and mechanical systems
2. PROGRAM: define pertinent requirements, including zoning and code requirements, environmental requirements and programmatic needs (defined through interviews with the users)
3. PROPOSALS: provide alternative design solutions, for architectural, structural and mechanical aspects of the project (reviewed through 2D and 3D drawings).
4. BUDGET PROJECTIONS AND PHASING: provide budget estimate for the recommendations and phasing to meet the Church’s expected fund raising goals.

Previous
Previous

Master Plan for the Landmarked Osborne Apartments

Next
Next

Three 14 Bed Community Residences